
XMC型脈沖布袋除塵器是我公司引進德國具有上九十年代技術水平的_除塵器進行吸收,并結合中國特點,研制出來的一種新型除塵器。該除塵器是采用高壓(0.5~0.4MPa)大流量脈沖閥逐條濾袋噴吹清灰的技術。能夠從大量_細粉塵(顆粒£5μm,含量³70%以上)的氣體中,高濃度(1300g/m3n)的氣體中,把99.9%以上的粉塵收集下來。1997年底通過省_鑒定,該除塵器具有國內_水平,其主要技術屬于國內_。目前在_新的環保標準條件下,不僅廣泛用于水泥廠的粉塵治理,而且還廣泛用于非金屬礦微細粉深加工領域,在電力、化工、冶金、鋼鐵等行業也有較好的應用前景。
二、構造及工作原理
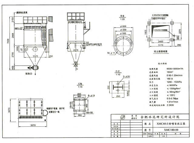
1、脈沖布袋除塵器結構
該設備主要有以下部分組成:
(1)箱體:包括袋室、預除塵室、凈氣室、多孔板、濾袋、濾袋骨架。箱體設計耐壓9000Pa。
(2)噴吹系統:包括主氣管、噴吹管、脈沖閥、控制儀。
(3)灰斗及排灰部分有兩種形式:一種為灰斗直接與卸灰閥連接,另一種為灰斗通過輸送設備(如螺旋輸送機)與卸灰閥連接。
2、工作原理
含塵氣體進入除塵器已擴大的灰斗進行預收塵,通過導流板均布于各條濾袋之間,粉塵阻留于濾袋外表面,為使設備阻力不_過1200Pa,高壓氣體經電磁閥產生脈噴,使氣包內壓縮空氣(0.5~0.7MPa),由噴吹管孔眼噴出(稱一次風)通過文氏管誘導數倍于一次風的周圍空氣(稱二次風)進入濾袋在瞬間急劇膨脹,并伴隨著氣流的反方向作用抖落粉塵,達到清灰的目的。使用微機自動控制裝置,根據粉塵隨意調整清灰周期和脈噴時間,使收塵器在_的嘴里范圍內運行。
三、選型
1、型號說明
該單機有60-2、60-3、60-4、60-5、60-6、70-5、70-6、70-7、70-8九種規格。具體型號說明如下:
2、選型參數及選型原則
(1)脈沖布袋除塵器選型的主要技術參數為風量、氣體溫度、含塵濃度與濕度。根據工藝設計的風量、氣體溫度、含塵濃度的量大數值,按略小于技術性能表中的數值為原則,其相對應的除塵器型號,即為所需要的除塵器型號,采用的濾袋根據入口濃度、氣體溫度、濕度含量確定。
(2)表中的耗氣量為工廠集中供氣的情況,如單獨使用空氣機時,實際的耗氣量要增大到表中數值的1.5倍。
(3)壓縮空氣耗氣量欄中,所提出的耗氣量為該型號設備的_耗氣量。




冀公網安備13098102000366號